物件NO:M-356
マンション
◇岡山市北区学南町1丁目◇ペットOK、設備フル装備。ちょっと贅沢な日常
価格3980万円
所在地: 岡山県岡山市北区学南町1丁目8-20
| 物件種目 | 分譲マンション(グレースマンション運動公園) |
|---|---|
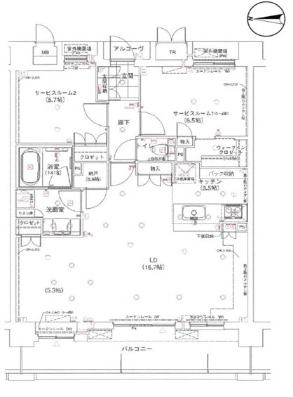
| 土地面積 | 専有面積:80.73㎡・バルコニー:13.73㎡ |
| 建物構造 | RC造5階建て |
| 築年数 | 2014年3月完成 |
| 都市計画 | 二種住居・市街化区域 |
| 間取り | 2LDK |
| 交 通 | JR津山線法界院駅徒歩11分 |
| 学 区 | 御野小学校・岡北中学校 |
| 駐車場 | 抽選:月額・屋内6500円・屋外5500円 |
| 現 況 | 空き(案内予約受付中) |
| その他 | 3階302号室/修繕積立金:月額12,900円/管理費8100円/ペット可(制限有)/駐車場抽選です(月額:屋内6500円・屋外5500円)/ミキハウス子育て総研認定マンション/エレベーター・宅配BOX・防災備蓄倉庫・ペット足洗い場・ECOジョーズ・オートバス機能・複層ガラス・システムキッチン・食器洗い乾燥機・浴室乾燥機・ディンプルキー(非接触タイプ)・防犯カメラ・24時間緊急通報システム 近隣環境 【教育施設】 ・学南保育園 740m ・南方保育園 980m ・御野小学校 940m ・岡北中学校 970m ・ノートルダム清心女子大学 980m 【公園・公共施設】 ・岡山県総合グラウンド 370m ・カンコースタジアム 560m ・桃太郎アリーナ 370m ・こどもの森 390m 【ショッピング施設】 ・天満屋ハピータウン岡北店 720m ・マルナカ中井町店 760m ・ファミリーマート学南町店 250m ・薬のラブ岡北店 920m |



土地物件
戸建物件
マンション物件
事業用物件


